Prodej bytu 3+1
Dobrovice - Sídliště
4 700 000 Kč
cena včetně provize a právních služeb
| Kód nabídky | N66476 |
|---|---|
| Dispozice bytu | 3+1 |
| Druh stavby | Cihlová |
| Celková plocha | 69 m2 |
| Užitná plocha | 67 m2 |
| Stav objektu | Dobrý |
| Typ domu | Patrový |
| Číslo podlaží | 2 |
| Počet podlaží | 2 |
| Vlastnictví | Osobní |
| K dispozici od | 1.2.2026 |
| Umístění objektu | Klidná část obce |
| PENB: Náročnost budovy | G - Mimořádně nehospodárná |
Popis
Příjemný byt se zahrádkou v Dobrovici u Mladé Boleslavi.
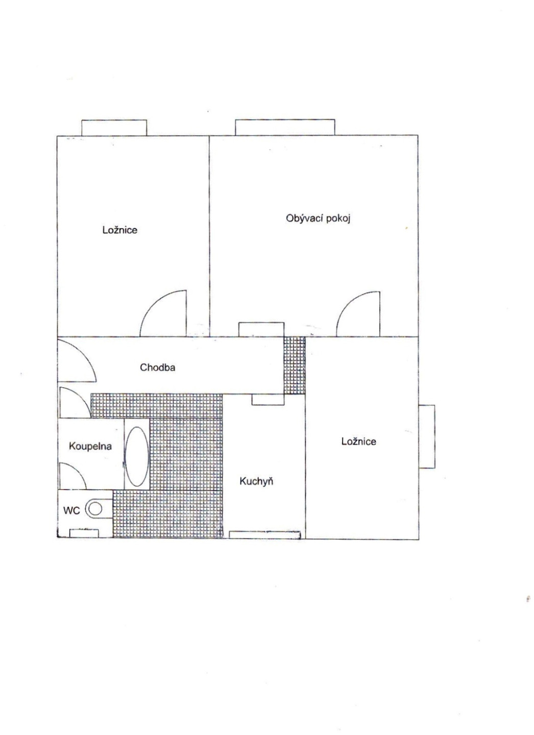
Byt 3+1, OV, 2 sklepy + podíl na zahradě, ulice Sídliště, Dobrovice, okres Mladá Boleslav, Středočeský kraj.
Chcete vlastnit hezký byt 3+1 se zahrádkou v atraktivní lokalitě Středočeského kraje? Hledáte vlastní bydlení nebo investiční příležitost k pronájmu v blízkosti Mladé Boleslavi? Oceňujete možnost relaxace na zahradě u domu a bezproblémové parkování? Preferujete lokalitu se základní vybaveností přímo v místě a současně s dobrou dostupností větších měst, dálnice D10, ale také Českého ráje? Pak nás neváhejte kontaktovat.
Světlý byt má velmi žádanou dispozici s dvěma neprůchozími ložnicemi, obývacím pokojem s okny do zeleně, útulnou kuchyní, koupelnou s vanou, samostatnou toaletou a vstupní chodbou s vestavěnými skříněmi. K bytu získáte dostatek úložných prostor v podobě dvou sklepů. Pro individuální regulaci vytápění a ohřevu vody se v bytě nachází plynový kotel. Samotný dům je průběžně udržovaný.
Útulný byt je po částečné modernizaci a připravený k okamžitému užívání. Vybavení interiéru může z velké části v bytě zůstat. Velkým bonusem této nabídky je podíl na pozemku u domu, kde můžete relaxovat a případně se věnovat i zahradničení. Nespornou výhodou je bezplatné parkování přímo u domu i v jeho okolí.
Atraktivní lokalita nabízí bydlení v klidné části hezkého menšího města, pěší dostupnost občanské vybavenosti, míst pro relaxaci, sport a odpočinek. V Dobrovici najdete například městský úřad, obchody, restaurace, zdravotnické středisko, lékárnu, knihovnu, poštu, školu, školku, muzea cukrovarnictví, lihovarnictví a řepařství, sportoviště, koupaliště.
Dobrovice jsou městem s bohatou historií a nachází se v Pojizeří, na dosah Českému ráji. Blízká Mladá Boleslav (7 km) pulsuje tepem moderní doby, je místem s plnou vybaveností a mnoha pracovními příležitostmi. Strategické umístění mezi Prahou a Libercem, blízko Jičína a Českého ráje, Máchova kraje i Jizerských hor, významně zvyšuje atraktivitu tohoto místa.
Prodávající si vyhrazuje právo vybrat kupujícího dle vlastních kritérií. Bližší informace rádi poskytneme.
Byt 3+1, OV, 2 sklepy + podíl na zahradě, ulice Sídliště, Dobrovice, okres Mladá Boleslav, Středočeský kraj.
Chcete vlastnit hezký byt 3+1 se zahrádkou v atraktivní lokalitě Středočeského kraje? Hledáte vlastní bydlení nebo investiční příležitost k pronájmu v blízkosti Mladé Boleslavi? Oceňujete možnost relaxace na zahradě u domu a bezproblémové parkování? Preferujete lokalitu se základní vybaveností přímo v místě a současně s dobrou dostupností větších měst, dálnice D10, ale také Českého ráje? Pak nás neváhejte kontaktovat.
Světlý byt má velmi žádanou dispozici s dvěma neprůchozími ložnicemi, obývacím pokojem s okny do zeleně, útulnou kuchyní, koupelnou s vanou, samostatnou toaletou a vstupní chodbou s vestavěnými skříněmi. K bytu získáte dostatek úložných prostor v podobě dvou sklepů. Pro individuální regulaci vytápění a ohřevu vody se v bytě nachází plynový kotel. Samotný dům je průběžně udržovaný.
Útulný byt je po částečné modernizaci a připravený k okamžitému užívání. Vybavení interiéru může z velké části v bytě zůstat. Velkým bonusem této nabídky je podíl na pozemku u domu, kde můžete relaxovat a případně se věnovat i zahradničení. Nespornou výhodou je bezplatné parkování přímo u domu i v jeho okolí.
Atraktivní lokalita nabízí bydlení v klidné části hezkého menšího města, pěší dostupnost občanské vybavenosti, míst pro relaxaci, sport a odpočinek. V Dobrovici najdete například městský úřad, obchody, restaurace, zdravotnické středisko, lékárnu, knihovnu, poštu, školu, školku, muzea cukrovarnictví, lihovarnictví a řepařství, sportoviště, koupaliště.
Dobrovice jsou městem s bohatou historií a nachází se v Pojizeří, na dosah Českému ráji. Blízká Mladá Boleslav (7 km) pulsuje tepem moderní doby, je místem s plnou vybaveností a mnoha pracovními příležitostmi. Strategické umístění mezi Prahou a Libercem, blízko Jičína a Českého ráje, Máchova kraje i Jizerských hor, významně zvyšuje atraktivitu tohoto místa.
Prodávající si vyhrazuje právo vybrat kupujícího dle vlastních kritérií. Bližší informace rádi poskytneme.
Lokalita
Dobrovice - Sídliště